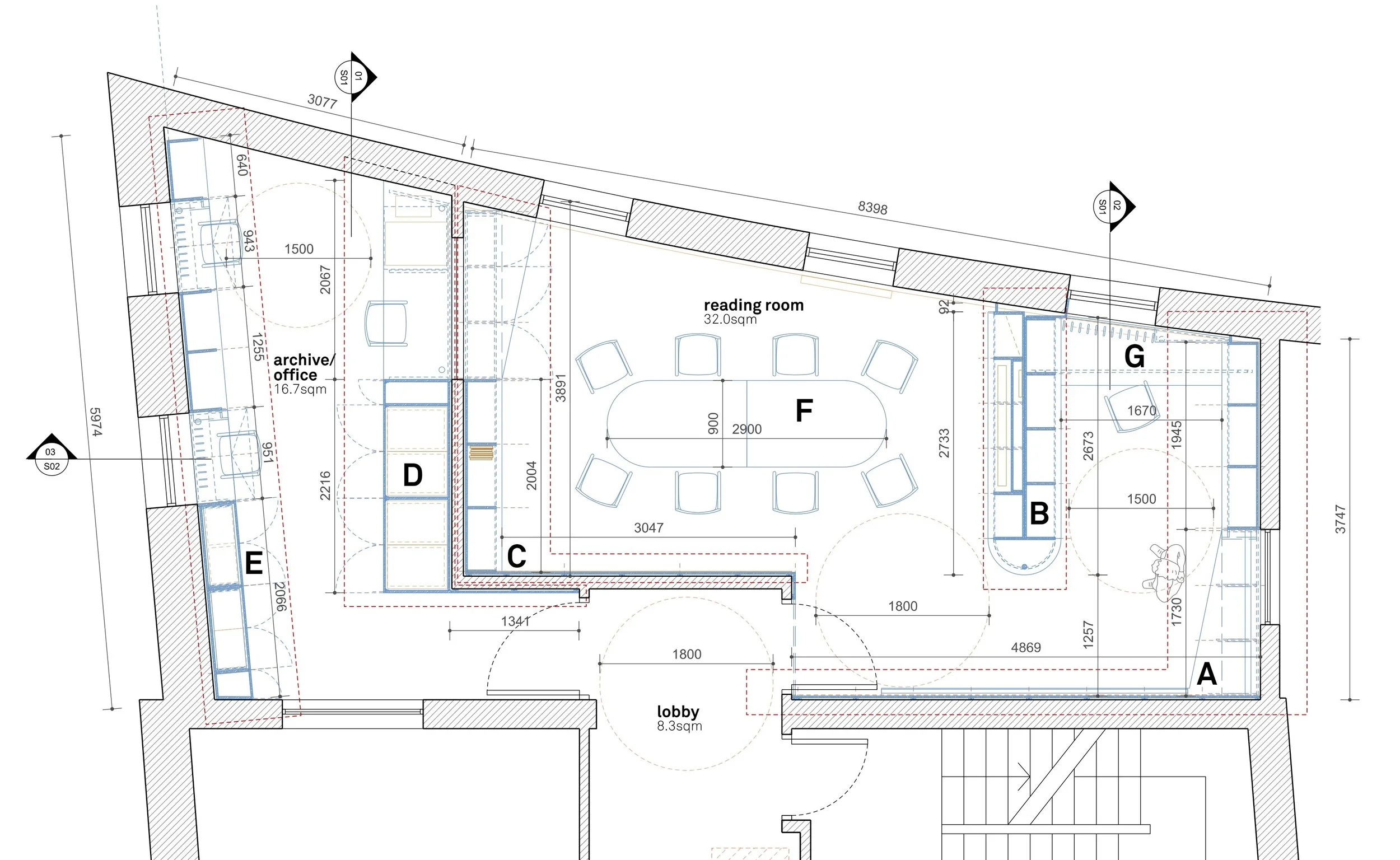
CREATE READING ROOM AND ARCHIVE
The brief for this project sought to convert two existing spaces within Create’s offices into a new archive and reading room, which would accommodate over 1,500 books and other material, including archive storage and IT equipment.
Office conversion
Client: Create Ireland
Dates: 2020 – 2025
Area: 60 sqm
Category: Office (Renovation) / Culture
© Ste Murray
© Ste Murray
© Ste Murray
General arrangement floor plan
© Ste Murray
